Skreddersydd dusjløsning - veien til drømmedusjen
Har du skråtak eller andre utfordringer på badet og sliter med å finne en dusjløsning som passer? Fortvil ikke. Det finnes dusjvegger og dusjhjørner som kan tilpasses på millimeteren. Vi har snakket med Ida Johansen hos Bademiljø Nidarvoll i Trondheim. Her er hennes tips til hvordan du kan skreddersy din egen dusjløsning.

En måltilpasset eller skreddersydd dusj?
Finner du ikke drømmedusjen, kan du faktisk tegne din helt egen dusjløsning som er tilpasset badet ditt på millimeteren.
- Uavhengig om du trenger en måltilpasset eller en skreddersydd dusjløsning, så har vi en løsning til et hvert bad. Hvilken løsning som anbefales kommer an på hvilke tilpasninger som må gjøres. Har du for eksempel en nisje med skråtak, kan INR skreddersy en løsning som passer perfekt til ditt bad. Skreddersydde løsninger kan også være praktisk hvis du har badekar og dusj rett ved siden av hverandre, da kan det være fint med en løsning hvor vi går for en fastvegg som går ned til selve badekarkanten. På den måten får du delt opp sonene på badet på en ren, stilfull og praktisk måte, forteller Ida.


SKREDDERSYDDE LØSNINGER: INR ARC Original dusjløsning i frostet glass tilpasset en badekarkant.
Når uvanlige dusjløsninger er standard
De aller fleste av dusjmodellene fra INR kan måltilpasses kostnadsfritt i både bredde og høyde innen modellenes målintervaller. Har du behov for å tilpasse dusjveggene ytterligere, er det som regel ikke noe problem. Dusjdrømmen kan begynne med noe så enkelt som en papirskisse.
- Ta gjerne med en skisse eller baderommets mål, så setter vi oss ned sammen i designstudioet i butikk. Over en kaffe ser vi på mulighetene du har i form av farger, beslag og løsninger før vi tar en endelig beslutning på dusjdesign sammen.
- For å være helt sikre på at vi har riktige mål av dusjrommet, sender vi muligens en rørlegger hjem til deg på befaring. For ved skreddersydde løsninger det viktig å ha helt nøyaktige mål - det er sjelden en suksess å gjette hva målene er, og det er fryktelig kjedelig å få levert en for liten dusjløsning, smiler Ida.
- Etter at vi har blitt enige om designet og dusjrommets mål er fastsatt, sender vi forslaget til INR som hjelper oss med å få satt opp en teknisk CAD-tegning samt et prisanslag på selve dusjløsningen.

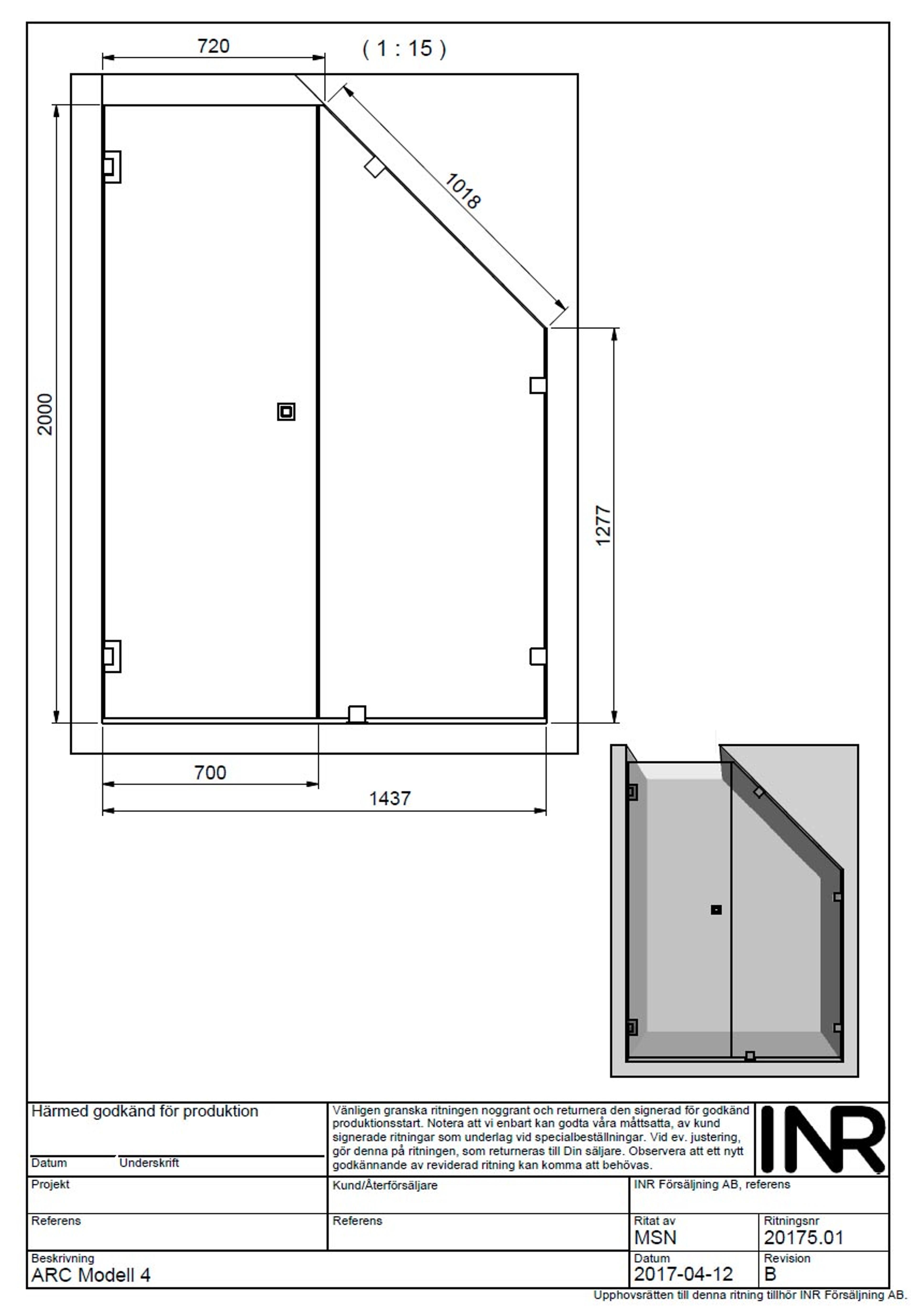
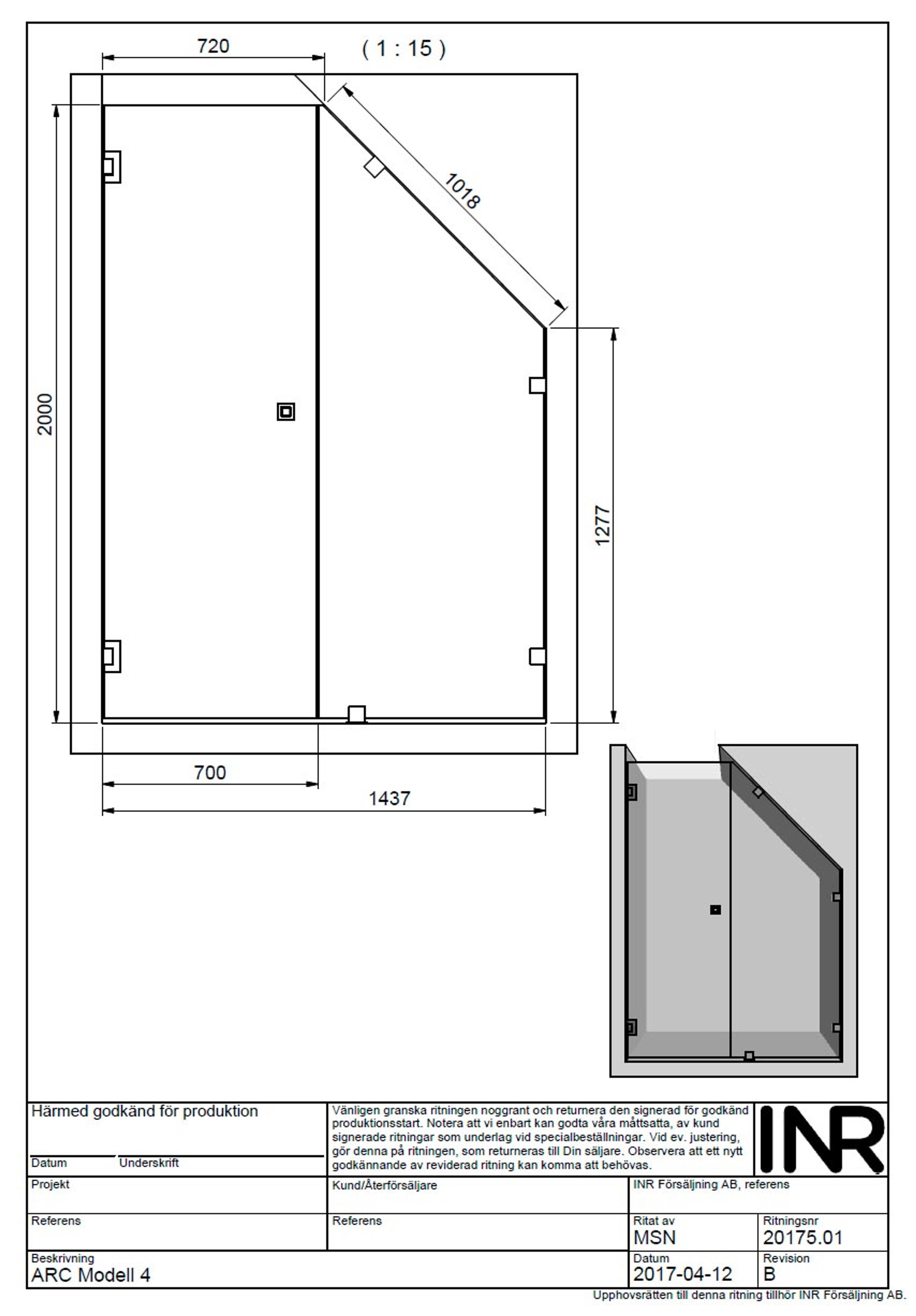
TEGNINGER: Ved skreddersydde løsninger er det viktig å måle opp dusjrommet nøye. INR kan lage tegninger etter mål kostnadsfritt. Selve produksjonstiden, etter at tegning og prisanslag er godkjent, er omtrent 20 arbeidsdager.
Skreddersydd dusjløsning - Ja, det er nok fryktelig dyrt?
- Selve tegningen fra INR tegner de kostnadsfritt, men en skreddersydd løsning vil så klart koste mer enn et helt standard dusjhjørne. Det er fordi det ligger mer jobb bak planleggingen og selve produksjonen. Det er ingen prisforskjell på en måltilpasset eller skreddersydd løsning, og prisene på måltilpassede løsninger står veldig oversiktlig i katalogen til INR. De fleste kundene blir positivt overrasket over at det ikke koster mer enn det gjør når de får prisoverslag på skreddersydde løsninger, forteller Ida.

DUSJ UNDER SKRÅTAK: Plassen under skråtak kan være vanskelig å utnytte, men en skråkappet dusjløsning kan være løsningen. Her INR ARC 4 dusjløsning med beslag i messing.

Ikke la kriker og kroker stoppe deg. Her INR ARC 13 Original dusjløsning med beslag i blank krom.
Fordeler med en skreddersydd dusjløsning
I mange tilfeller er en måltilpasset eller skreddersydd dusjløsning det eneste som passer, men Ida forteller at det er flere gode grunner til å gå for nettopp en slik dusjløsning på badet.
- Fordelen med en skreddersydd løsning er at du kan tilpasse etter eget behov og hensynta utformingen på badet, for eksempel ved skråtak, en spesiell nisjeløsning eller andre utfordringer man kan finne på badet. I tillegg er det i mange tilfeller en penere løsning.
Gode grunner til å gå for en måltilpasset eller skreddersydd dusjløsning:
- Bedre utnyttelse av plassen på badet.
- Mer glass og mindre profiler gir et renere uttrykk og er enklere å rengjøre.
- Leveringstid er ofte et argument for å velge bort en måltilpasset løsning og velge en standardløsning, men forskjellen i leveringstid er faktisk ikke mer en 10 virkedager.

Idé! En dusjløsning som går fra gulv til tak får rommet til å føles større - og ikke minst, skikkelig luksuriøst. Her INR ARC 43 Original Plus i klart glass og beslag i krom.
Tips når du skal oppgradere dusjløsning
Om du skal oppgradere dusjløsningen eller skal i gang med en totalrenovering av badet, kan det være lurt å ha noen ting i bakhodet før du tar valg om dusjløsning.
- Det som er lurt å tenke på når man skal oppgradere dusjen er hva slags uttrykk du ønsker at badet skal ha. Hvor mye plass har du til rådighet til å lage en dusjløsning, var du fornøyd med den forrige dusjløsningen du hadde, eller hva kan du eventuelt tenke deg å endre på. Det er også greit å ha en viss følelse om hva slags fargepalett du ønsker at badet og dusjløsningen skal ha i form av farger på beslag og type glass – for her har du mange valgmuligheter.

LAG DIN EGEN DUSJLØSNING: Med INR har du muligheten til å skape noe helt eget. Hva med en skreddersydd dusj- eller badstueløsning? Her ser du INR ARC Frame 20 dusjløsning med beslag i sort matt.
- Et annet godt tips, når det kommer til å finne spennende løsninger, er å aktivt lete etter inspirasjon - enten på INR sin nettside, Pinterest eller Instagram! På slike sider kan man komme over noen kule ideer og løsninger som man kanskje ikke hadde klart å komme på selv, forteller Ida.
Les også: Finn den beste dusjløsningen til ditt bad
Drømmer du om en måltilpasset eller skreddersydd dusjløsning? Vi i Bademiljø har dyktige baderomdesignere og rørleggere som kan hjelpe deg. Ta kontakt med din lokale Bademiljø-butikk,så hjelper vi deg med å oppfylle dusjdrømmen.
Følg oss gjerne på Instagram eller Pinterest for mer inspirasjon.